Green Park Studios

New office workspace in the heart of Bath.

Project Information

Location

: Bath


Client

: Designscape Architects


Status

: Construction Ongoing – To Complete Summer 2026

TO LET

Set within a beautifully converted, former stables building, this 1,600 Sq ft (148sqm) two-storey work-space blends character with modern performance. Just minutes from Bath city centre, riverside walkway, and railway station, it offers a convenient and inspiring business location.

Suitable for a range of workspace uses with flexible fitout arrangement to suit tenant’s needs and the potential option for private parking.

The building delivers a high level of thermal performance and the option for electricity supply via on-site PV panels, ensuring sustainability alongside comfort.

This is a rare chance to secure distinctive, high-quality workspace in an exceptional setting.

Register your interest now.

studiomanager@dscape.co.uk

01225 858500

Green Park Studios

Green Park Mews
Bath
BA1 1JD

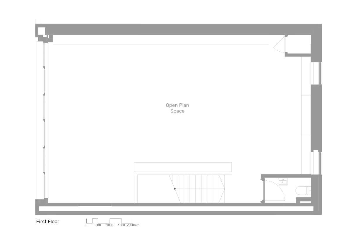
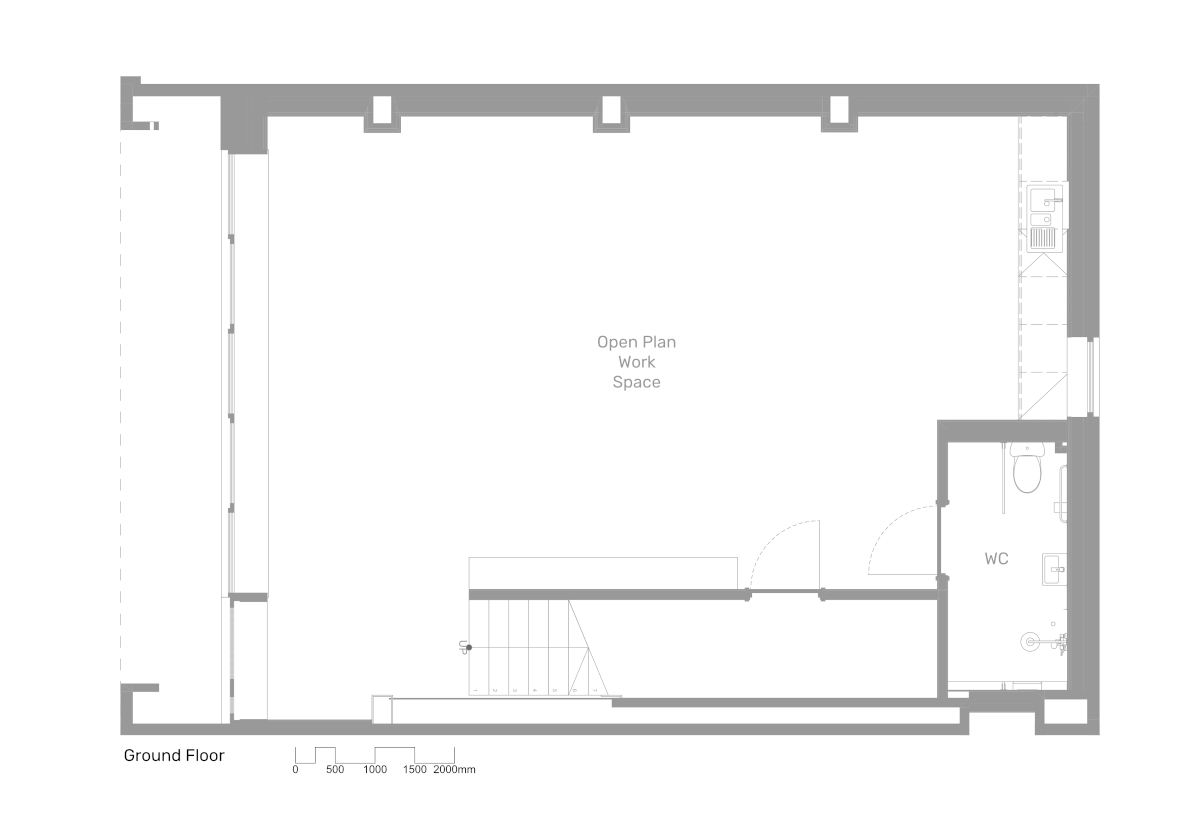
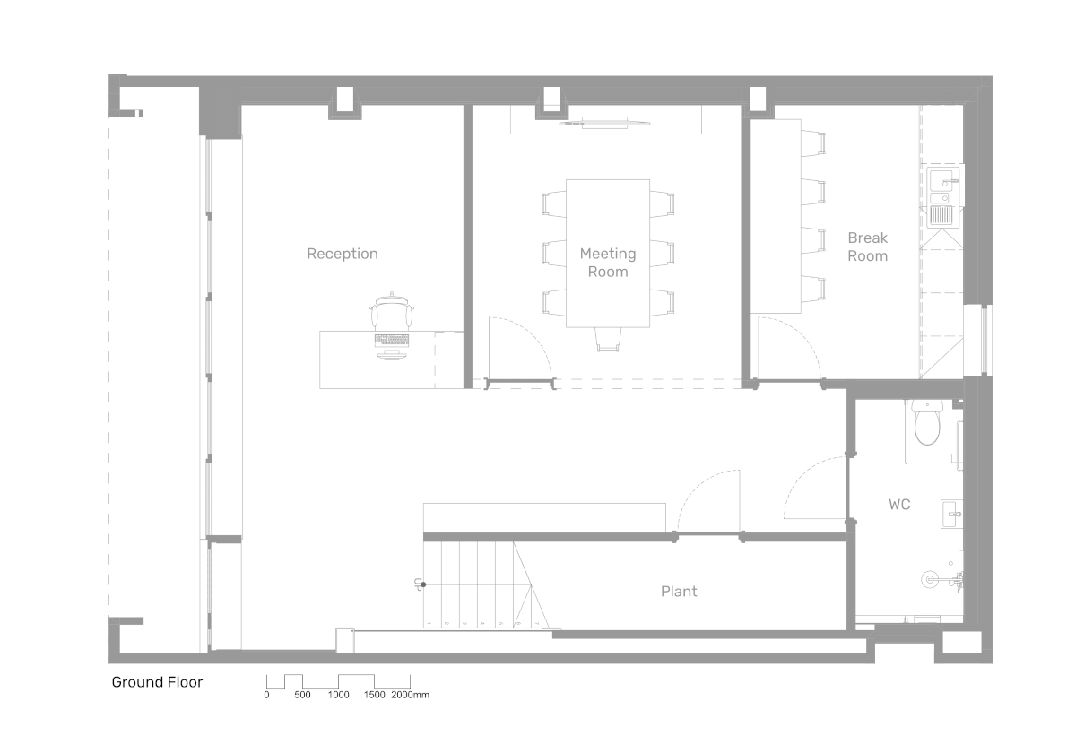
Floor plans

Scrapbook

TO LET

Set within a beautifully converted, former stables building, this 1,600 Sq ft (148sqm) two-storey work-space blends character with modern performance. Just minutes from Bath city centre, riverside walkway, and railway station, it offers a convenient and inspiring business location.

Suitable for a range of workspace uses with flexible fitout arrangement to suit tenant’s needs and the potential option for private parking.

The building delivers a high level of thermal performance and the option for electricity supply via on-site PV panels, ensuring sustainability alongside comfort.

This is a rare chance to secure distinctive, high-quality workspace in an exceptional setting.

Register your interest now.

studiomanager@dscape.co.uk

01225 858500